Opis
Rekuperator AIR EXPERT 400 H BASIC to kompletne urządzenie wentylacyjne z poziomym układem króćców służące do wentylacji domów jednorodzinnych lub obiektów usługowych. Charakteryzuje się wydajnością do 450m3/h.
Wariant BASIC – wymiennik Recair RS160-500-100, brak nagrzewnicy, brak modułu internetowego
Wysoka jakość wykonania gwarantuje niezawodność i energooszczędność.
ZALETY PRODUKTU:
- OBUDOWA - wykonana z EPP (spienionego polipropylenu) oraz stali malowanej proszkowo . EPP charakteryzuje się wysoką wytrzymałością, zapewnia doskonałą izolację akustyczną i termiczną.
- WYMIENNIK CIEPŁA - najskuteczniejszy i niezawodny krzyżowo-przeciwprądowy polistyrenowy wymiennik o wysokiej efektywności wymiany ciepła (sprawność do 98%) renomowanych firm takich jak RECAIR, CORE posiadających wieloletnie doświadczenie, oferujących swoje produkty najlepszym na runku producentom central.
- WENTYLATORY - zastosowane zostały silniki elektro komutatorowe prądu stałego (EC) renomowanych firmy ZILABEG, EBM, ROSENBERG, dające gwarancję niezawodności oraz energooszczędnej cichej pracy. Silniki EC zapewniają wysoką wydajność i regulację w pełnym zakresie prędkości obrotowej wentylatora. Niewątpliwą zaletą silnika EC jest jego wysoki współczynnik KPD (do 90%).
- AUTOMATYCZNY BYPASS - oferowane centrale wyposażone są w 100% by-pass, zapewniający w razie potrzeby możliwość schłodzenia pomieszczenia dzięki bezpośredniemu dopływowi chłodnego powietrza do pomieszczeń z zewnątrz w okresie letnim bez konieczności zastępowania wymiennika kasetami letnimi, co z perspektywy czasu i obsługi jest dość uciążliwe w eksploatacji.
- NAGRZEWNICA WSTĘPNA – uruchamiana automatycznie. Zapobiega zamarzaniu wymiennika. Moc 3,0KW.
- NOWOCZESNY STEROWNIK - zaawansowana automatyka pozwala precyzyjnie dostosować parametry centrali pod bieżącą instalację oraz panujące warunki pogodowe. Podstawowe funkcje automatyki centrali:
- sterowanie GWC,
- sterowanie nagrzewnicą wstępną/wtórną,
- sterowanie bypass,
- ustawienie harmonogramu tygodniowego,
- wskaźnik zabrudzenia filtra,
- sterowanie pracą instalacji grzewczej,
- sterowanie on-line,
- odczyt wszystkich temperatur.
PANEL STERUJĄCY
NANO ONE termostatem pokojowym współpracującym z regulatorami COMPIT. Można na nim ustawić temperaturę zadaną komfortową, eko, temperaturę w programie POZA DOMEM (URLOP). Przełączanie pomiędzy temperaturą komfortową a eko jest realizowane automatycznie za pomocą zaprogramowanego harmonogramu dziennego i tygodniowego. Dodatkowo termostat posiada harmonogram na dni świąteczne oraz tryb pracy ręcznej.
DANE TECHNICZNE

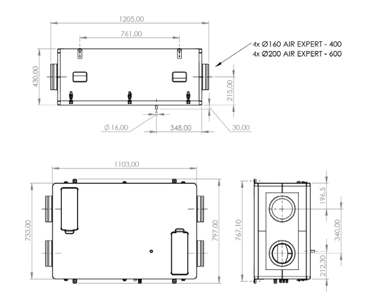
WYMIARY
BUDOWA
KRÓĆCE PRZYŁĄCZENIOWE
DO POBRANIA (KLIKNIJ, ABY POBRAĆ):
Bezpieczeństwo
Producent
PRODMAX Sp. z o.o.
ul. Sokołowska 38
05-806 Sokołów, Polska
zuromin@prodmax.pl
+48 22 723 01 62
Osoba odpowiedzialna na terenie UE
PRODMAX Sp. z o.o.
ul. Sokołowska 38
05-806 Sokołów, Polska
zuromin@prodmax.pl
Certyfikaty i ostrzeżenie bezpieczeństwa
- Chronić przed dziećmi.
- Opakowanie nie służy do zabawy.
- Przechowywać w suchym i chłodnym miejscu.
- Utylizować zgodnie z lokalnymi przepisami dotyczącymi odpadów.
- Lista ostrzeżeń dotyczących bezpieczeństwa rekuperacji oparta o wymagania Rozporządzenia (UE) 2023/988 w sprawie ogólnego bezpieczeństwa produktów (GPSR):
- 1. Instalacja: Zleć instalację Urządzenia wykwalifikowanemu elektrykowi, aby uniknąć błędów i zapewnić prawidłowe działanie. Nieprawidłowa instalacja może prowadzić do zwarć, przegrzania lub porażenia prądem.
- 2. Ryzyko porażenia prądem: Upewnij się, że rekuperator jest prawidłowo uziemiony. Unikaj dotykania mokrymi rękami elementów elektrycznych.
- 3. Ryzyko pożaru: Regularnie czyść filtry i wnętrze urządzenia, aby zapobiec gromadzeniu się łatwopalnych zanieczyszczeń.
- 4. Ryzyko zatrucia: Upewnij się, że system rekuperacji jest prawidłowo zainstalowany i wentylowany, aby zapobiec gromadzeniu się szkodliwych gazów.
- 5. Ryzyko uszkodzenia mechanicznego: Upewnij się, że rekuperator jest zamontowany stabilnie i zgodnie z instrukcją producenta, aby uniknąć upadku lub uszkodzenia.
- 6. Ryzyko alergii: Regularnie czyść lub wymieniaj filtry, aby zapobiec gromadzeniu się alergenów, takich jak pyłki i kurz.
- 7. Ostrzeżenia dotyczące dzieci: Zabezpiecz dostęp do rekuperatora, aby dzieci nie mogły go uruchomić, wyłączyć lub zmienić ustawienia.
- 8. Kwestie związane z konserwacją: Regularnie sprawdzaj stan techniczny rekuperatora i jego podzespołów, aby zapewnić jego prawidłowe i bezpieczne działanie.
- 9. Dodatkowe materiały: Przeczytaj instrukcje producenta przed instalacją.
Koszty dostawy
Cena nie zawiera ewentualnych kosztów płatności
Rekuperator AIR EXPERT H 400 BASIC - DARMOWY TRANSPORT!
5
towar niedostępny
Buy this products now - pay for it in 30 days
