Opis
CENTRALA WENTYLACYJNA 250 HEKO PREMIUM - wydajność do 250m3
PREMIUM – Termostat Nano Kolor ,Obudowa Blacha Ocynk lakierowana proszkowo
Obudowa w całości wykonana z blachy ocynkowanej izolowanej (dostępna opcja malowana), charakteryzuje się doskonałymi właściwościami tłumienia drgań, hałasu, dużą sztywnością, niewielkim ciężarem oraz odpornością na warunki atmosferyczne i promieniowanie UV. Całe wnętrze obudowy ocieplono termicznie i wygłuszono akustycznie;
Sterowanie i automatyka
Automatyka central wentylacyjnych składa się co najmniej z dwóch elementów:
-sterownika zamontowanego wewnątrz centrali,
-wyświetlacz montowanego w dogodnym dla użytkownika miejscu
System wentylacji mieszkań pozwala na wentylowanie każdego lokalu indywidualnie, niezależnie od pozostałych. Rozwiązanie opracowane szczególnie z myślą o budownictwie mieszkaniowym, spełnia oczekiwania lokatorów i deweloperów. Tym pierwszym gwarantuje w ich własnym „M” świeże, wolne od kurzu i pyłu powietrze. Deweloperom zaś oferuje skuteczne rozwiązanie problemu wentylacji (co niewątpliwie podnosi standard mieszkań i zabezpiecza budynek przed rozwojem pleśni i grzybów), a także dodatkową powierzchnię użytkową lokali, uzyskaną dzięki likwidacji kanałów wentylacji grawitacyjnej oraz zabudowaniu central wentylacyjnych w ścianie budynku.
System firmy PRODMAX może być stosowany zarówno w obiektach nowo budowanych, jak i już istniejących . Zachowuje dużą elastyczność i łatwo go dostosować do każdej konstrukcji i technologii budowlanej. Do jego montażu można wykorzystać dowolną ścianę zewnętrzną (w kuchni, łazience, składziku czy nawet w salonie), ze względu na cichą pracę urządzenia. Zawsze jednak należy pamiętać o zapewnieniu dostępu do drzwiczek rewizyjnych, celem wymiany filtrów bądź ewentualnych prac serwisowych. Widoczne z zewnątrz elementy systemu, takie jak czerpnie ścienne, wyrzutnie dachowe czy płyty rewizyjne (maskujące) wykonywane są w uzgodnieniu z deweloperem i projektantem, tak aby harmonizowały z bryłą budynku oraz elementami wykończenia wnętrz.
Sercem centrali jest krzyżowo - przeciwprądowy wymiennik ciepła, odporny na szronienie i szczelny, o bardzo wysokim odzysku ciepła na poziomie 85-90%. System PRODMAX nie miesza powietrza świeżego z powietrzem zużytym, zachowuje również zasadę przepływu powietrza z pomieszczeń „czystych” (pokoje, salon) do pomieszczeń „brudnych” (łazienka, toaleta, kuchnia). Każde mieszkanie może mieć tym samym własny system wentylacji, co chroni je przed przenikaniem zapachów z innych mieszkań, a zarządcy budynku pozwala na niezależne rozliczenie kosztów eksploatacji wentylacji dla każdego lokalu.
Dostępne wyposażenie w zależności od wersji:
-BASIC / Termostat Nano One / Obudowa Ocynk
-CLASSIC / Termostat Nano Kolor / Obudowa Ocynk
-PREMIUM / Termostat Nano Kolor / Obudowa Blacha Ocynk lakierowana proszkowo
PANEL STERUJĄCY
NANO COLOR jest panelem pokojowym współpracującym z regulatorami COMPIT. Można na nim ustawić temperaturę zadaną komfortową, eko, temperaturę w programie POZA DOMEM (URLOP). Przełączanie pomiędzy temperaturą komfortową a eko i strefą POZA DOMEM jest realizowane automatycznie za pomocą zaprogramowanego harmonogramu dziennego i tygodniowego. Dodatkowo termostat posiada harmonogram na dni świąteczne oraz tryb pracy ręcznej.
DANE TECHNICZNE
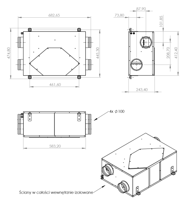
WYMIARY
BUDOWA
KRÓĆCE PRZYŁĄCZENIOWE
DO POBRANIA (KLIKNIJ, ABY POBRAĆ):
Bezpieczeństwo
Producent
PRODMAX Sp. z o.o.
ul. Sokołowska 38
05-806 Sokołów, Polska
zuromin@prodmax.pl
+48 22 723 01 62
Osoba odpowiedzialna na terenie UE
PRODMAX Sp. z o.o.
ul. Sokołowska 38
05-806 Sokołów, Polska
zuromin@prodmax.pl
Certyfikaty i ostrzeżenie bezpieczeństwa
- Chronić przed dziećmi.
- Opakowanie nie służy do zabawy.
- Przechowywać w suchym i chłodnym miejscu.
- Utylizować zgodnie z lokalnymi przepisami dotyczącymi odpadów.
- Lista ostrzeżeń dotyczących bezpieczeństwa rekuperacji oparta o wymagania Rozporządzenia (UE) 2023/988 w sprawie ogólnego bezpieczeństwa produktów (GPSR):
- 1. Instalacja: Zleć instalację Urządzenia wykwalifikowanemu elektrykowi, aby uniknąć błędów i zapewnić prawidłowe działanie. Nieprawidłowa instalacja może prowadzić do zwarć, przegrzania lub porażenia prądem.
- 2. Ryzyko porażenia prądem: Upewnij się, że rekuperator jest prawidłowo uziemiony. Unikaj dotykania mokrymi rękami elementów elektrycznych.
- 3. Ryzyko pożaru: Regularnie czyść filtry i wnętrze urządzenia, aby zapobiec gromadzeniu się łatwopalnych zanieczyszczeń.
- 4. Ryzyko zatrucia: Upewnij się, że system rekuperacji jest prawidłowo zainstalowany i wentylowany, aby zapobiec gromadzeniu się szkodliwych gazów.
- 5. Ryzyko uszkodzenia mechanicznego: Upewnij się, że rekuperator jest zamontowany stabilnie i zgodnie z instrukcją producenta, aby uniknąć upadku lub uszkodzenia.
- 6. Ryzyko alergii: Regularnie czyść lub wymieniaj filtry, aby zapobiec gromadzeniu się alergenów, takich jak pyłki i kurz.
- 7. Ostrzeżenia dotyczące dzieci: Zabezpiecz dostęp do rekuperatora, aby dzieci nie mogły go uruchomić, wyłączyć lub zmienić ustawienia.
- 8. Kwestie związane z konserwacją: Regularnie sprawdzaj stan techniczny rekuperatora i jego podzespołów, aby zapewnić jego prawidłowe i bezpieczne działanie.
- 9. Dodatkowe materiały: Przeczytaj instrukcje producenta przed instalacją.
Koszty dostawy
Cena nie zawiera ewentualnych kosztów płatności
Rekuperator HEKO 250 PREMIUM - DARMOWY TRANSPORT!
5
towar niedostępny
Buy this products now - pay for it in 30 days
