Opis
Rekuperator PROMINI 300 V/H to kompletne urządzenie wentylacyjne z możliwością zmiany układu króćców zapewniające filtrację i dopływ świeżego powietrza do pomieszczeń, a także usuwanie powietrza zanieczyszczonego. Służące do wentylacji domów jednorodzinnych lub obiektów usługowych. Charakteryzuje się wydajnością do 300m3/h.
CLASSIC – wymiennik REK+17-240-22, BYPASS automatyczny, Nagrzewnica Wstępna M – 500W, moduł sterowania onlin
ZALETY PRODUKTU:
- OBUDOWA – wykonana w całości ze stali malowanej proszkowo, zaizolowana. Charakteryzuje się doskonałymi właściwościami tłumienia drgań, hałasu
- WYMIENNIK CIEPŁA – najskuteczniejszy i niezawodny krzyżowo-przeciwprądowy polistyrenowy wymiennik o wysokiej efektywności wymiany ciepła (sprawność do 98%) renomowanych firm takich jak RECAIR, CORE posiadających wieloletnie doświadczenie, oferujących swoje produkty najlepszym na runku producentom central.
- WENTYLATORY – zastosowane zostały silniki elektro-komutatorowe prądu stałego (EC). Silniki EC zapewniają wysoką wydajność i regulację w pełnym zakresie prędkości obrotowej wentylatora
- AUTOMATYCZNY BYPASS – zapewniający w razie potrzeby możliwość schłodzenia pomieszczenia dzięki bezpośredniemu dopływowi chłodnego powietrza do pomieszczeń z zewnątrz w okresie letnim bez konieczności zastępowania wymiennika kasetami letnimi, co z perspektywy czasu i obsługi jest dość uciążliwe w eksploatacji
- NAGRZEWNICA WSTĘPNA – uruchamiana automatycznie. Zapobiega zamarzaniu wymiennika. Moc 0,5KW.
- NOWOCZESNY STEROWNIK – zaawansowana automatyka pozwala precyzyjnie dostosować parametry centrali pod bieżącą instalację oraz panujące warunki pogodowe. Podstawowe funkcje automatyki centrali:
- sterowanie GWC,
- sterowanie nagrzewnicą wstępną/wtórną,
- sterowanie bypass,
- ustawienie harmonogramu tygodniowego,
- wskaźnik zabrudzenia filtra,
- sterowanie pracą instalacji grzewczej,
- sterowanie on-line,
- odczyt wszystkich temperatur.
PANEL STERUJĄCY
NANO COLOR jest panelem pokojowym współpracującym z regulatorami COMPIT. Można na nim ustawić temperaturę zadaną komfortową, eko, temperaturę w programie POZA DOMEM (URLOP). Przełączanie pomiędzy temperaturą komfortową a eko i strefą POZA DOMEM jest realizowane automatycznie za pomocą zaprogramowanego harmonogramu dziennego i tygodniowego. Dodatkowo termostat posiada harmonogram na dni świąteczne oraz tryb pracy ręcznej.
DANE TECHNICZNE

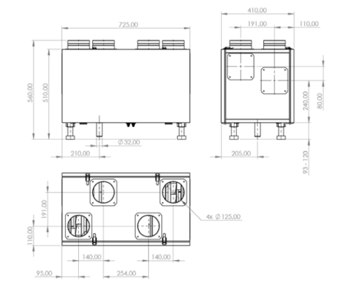
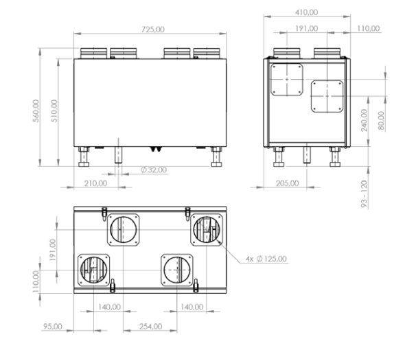
WYMIARY
BUDOWA
KRÓĆCE PRZYŁĄCZENIOWE
DO POBRANIA (KLIKNIJ, ABY POBRAĆ):
Bezpieczeństwo
Producent
PRODMAX Sp. z o.o.
ul. Sokołowska 38
05-806 Sokołów, Polska
zuromin@prodmax.pl
+48 22 723 01 62
Osoba odpowiedzialna na terenie UE
PRODMAX Sp. z o.o.
ul. Sokołowska 38
05-806 Sokołów, Polska
zuromin@prodmax.pl
Certyfikaty i ostrzeżenie bezpieczeństwa
- Chronić przed dziećmi.
- Opakowanie nie służy do zabawy.
- Przechowywać w suchym i chłodnym miejscu.
- Utylizować zgodnie z lokalnymi przepisami dotyczącymi odpadów.
- Lista ostrzeżeń dotyczących bezpieczeństwa rekuperacji oparta o wymagania Rozporządzenia (UE) 2023/988 w sprawie ogólnego bezpieczeństwa produktów (GPSR):
- 1. Instalacja: Zleć instalację Urządzenia wykwalifikowanemu elektrykowi, aby uniknąć błędów i zapewnić prawidłowe działanie. Nieprawidłowa instalacja może prowadzić do zwarć, przegrzania lub porażenia prądem.
- 2. Ryzyko porażenia prądem: Upewnij się, że rekuperator jest prawidłowo uziemiony. Unikaj dotykania mokrymi rękami elementów elektrycznych.
- 3. Ryzyko pożaru: Regularnie czyść filtry i wnętrze urządzenia, aby zapobiec gromadzeniu się łatwopalnych zanieczyszczeń.
- 4. Ryzyko zatrucia: Upewnij się, że system rekuperacji jest prawidłowo zainstalowany i wentylowany, aby zapobiec gromadzeniu się szkodliwych gazów.
- 5. Ryzyko uszkodzenia mechanicznego: Upewnij się, że rekuperator jest zamontowany stabilnie i zgodnie z instrukcją producenta, aby uniknąć upadku lub uszkodzenia.
- 6. Ryzyko alergii: Regularnie czyść lub wymieniaj filtry, aby zapobiec gromadzeniu się alergenów, takich jak pyłki i kurz.
- 7. Ostrzeżenia dotyczące dzieci: Zabezpiecz dostęp do rekuperatora, aby dzieci nie mogły go uruchomić, wyłączyć lub zmienić ustawienia.
- 8. Kwestie związane z konserwacją: Regularnie sprawdzaj stan techniczny rekuperatora i jego podzespołów, aby zapewnić jego prawidłowe i bezpieczne działanie.
- 9. Dodatkowe materiały: Przeczytaj instrukcje producenta przed instalacją.
Koszty dostawy
Cena nie zawiera ewentualnych kosztów płatności
Rekuperator PROMINI 300 V/H CLASSIC - DARMOWY TRANSPORT!
5
towar niedostępny
Buy this products now - pay for it in 30 days
