Opis
Wentylator promieniowy KEF/EC-200/74-115T 400V 50/60Hz
Kod produktu 45013036
ZASTOSOWANIE
Wentylatory promieniowe KEF, dzięki swojej konstrukcji i niskiemu poziomowi hałasu dedykowane są do pracy w:
- odciągach kuchennych,
- okapach w małych punktach gastronomicznych.
FILM PRODUKTOWY
KONSTRUKCJA
- wentylator promieniowy o napędzie bezpośrednim,
- obudowa ze stali cynkowanej, izolowana akustycznie i termicznie matą w klasie odporności ogniowej A1, grubości 50mm.
- wirnik w modelach od 160 do 280 z łopatkami pochylonymi do przodu typu F zgrzewany z galwanizowanej blachy stalowej, w modelach 315 i 355 z łopatkami pochylonymi do tyłu spawany z blachy aluminiowej,
- wirniki wyważane dynamicznie,
- silnik wraz z wirnikiem montowany na uchylnych drzwiczkach, zapewniających łatwy dostęp do wnętrza wentylatora i konserwację,
- osłona silnika wykonana ze stali cynkowanej,
- wentylator posiada uchwyty, na których wentylator można posadowić,
- wibroizolatory w standardzie,
- wentylator na ssaniu i na tłoczeniu wyposażony jest w króćce przyłączeniowe z gumowymi uszczelkami,
- maksymalna temperatura tłoczonego medium 120°C.
SILNIK ELEKTRYCZNY
- Silniki EC wyposażone w wejście sterujące 0-10VDC, umożliwiające płynną regulację obrotów,
- klasa izolacji - F,
- stopień ochrony - IP54,
- zasilanie: - trójfazowe 400V 50/60Hz lub - jednofazowe 230V 50/60Hz (w zależności od modelu wentylatora i mocy silnika).
DANE TECHNICZNE

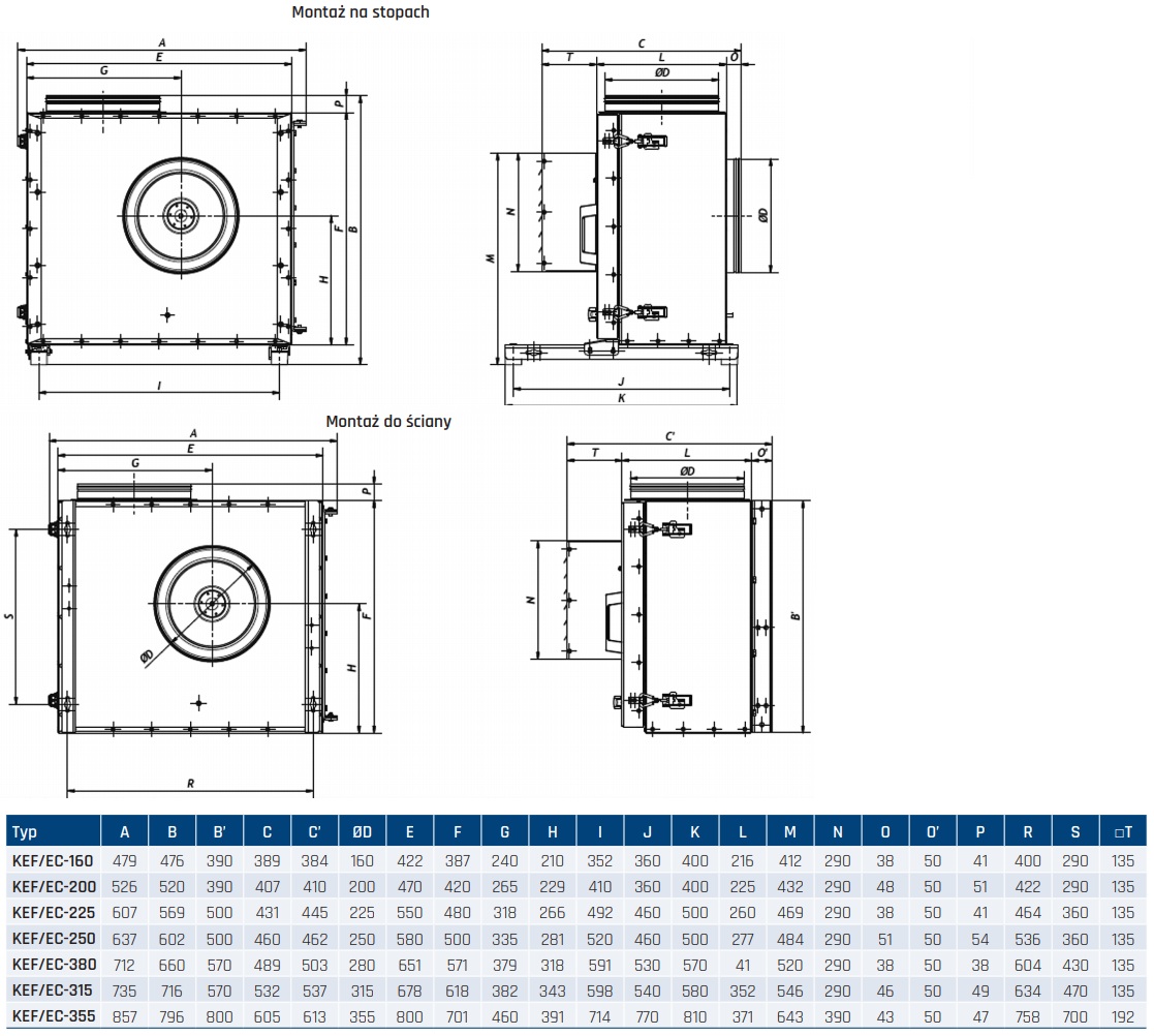
WYMIARY

KARTA KATALOGOWA
ZNAK ZGODNOŚCI

Pliki do pobrania:
Bezpieczeństwo
Producent
Venture Industries Sp. z o. o.
ul. Mokra 27
05-092 Łomianki-Kiełpin, Polska
venture@venture.pl
+48227519550
Osoba odpowiedzialna na terenie UE
Venture Industries Sp. z o. o.
ul. Mokra 27
05-092 Łomianki-Kiełpin, Polska
venture@venture.pl
+48227519550
Certyfikaty i ostrzeżenie bezpieczeństwa
- Posiada oznaczenie CE (zgodność z normami UE).
- Chronić przed dziećmi.
- Opakowanie nie służy do zabawy.
- Przechowywać w suchym i chłodnym miejscu.
- Utylizować zgodnie z lokalnymi przepisami dotyczącymi odpadów.
Pliki do pobrania:
Koszty dostawy
Cena nie zawiera ewentualnych kosztów płatności
Wentylator promieniowy KEF/EC-200/74-115T 400V 50/60Hz
5
towar niedostępny
Buy this products now - pay for it in 30 days
